Référence : 0002010016
11,90 €
TTC
Ne pas saisir les 0 en début de référence.
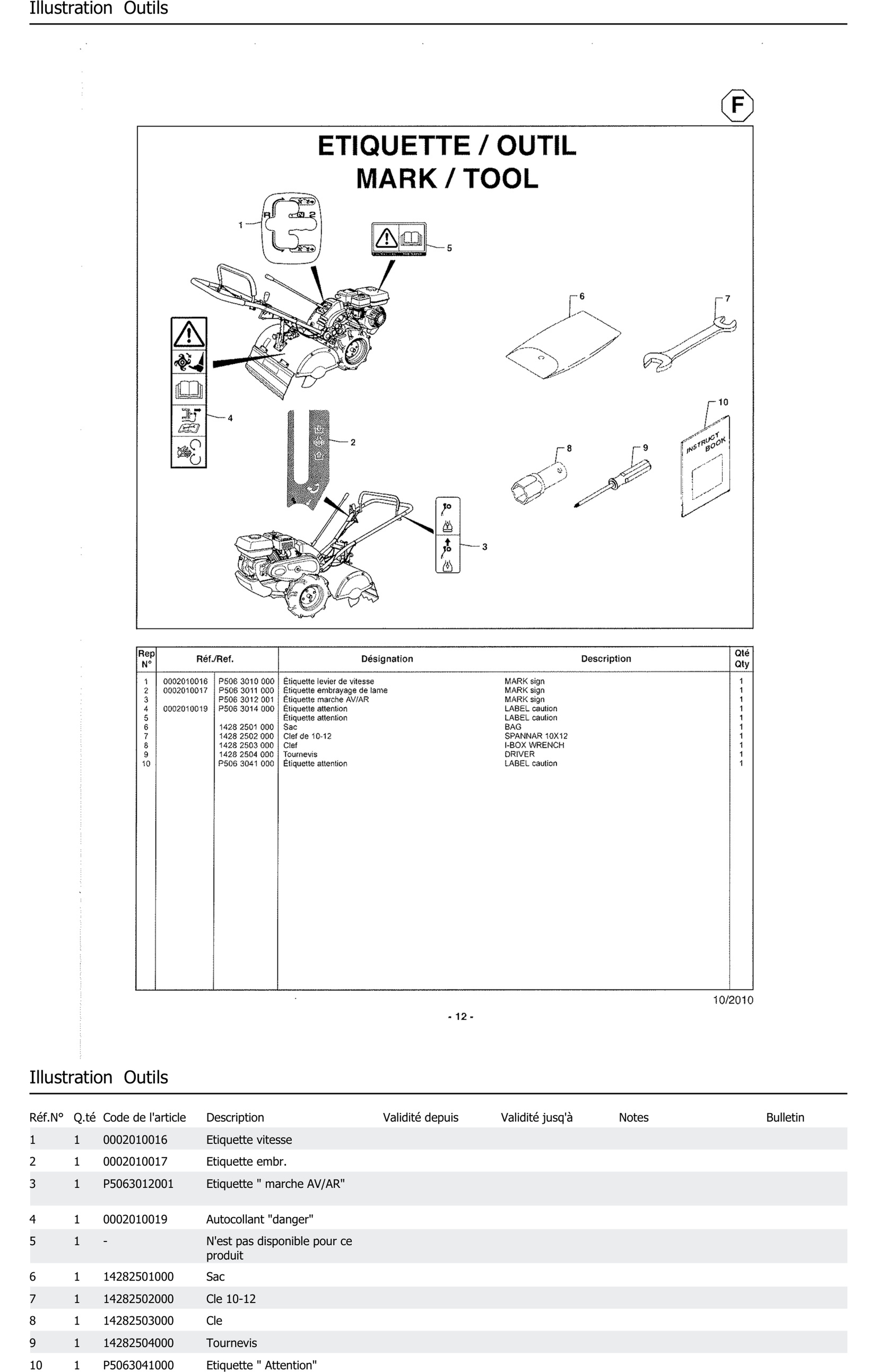
Pièces détachées STAUB STR 55 Version 2010 Rotobineuse Outils
Cliquez sur l'image ci-dessous pour zoomer

Pièces détachées Outils. Schéma éclaté et références d'origine.
Ne pas saisir les 0 en début de référence.